villa indipendente con podere - 450.000 euro
I  510 - Pontremoli
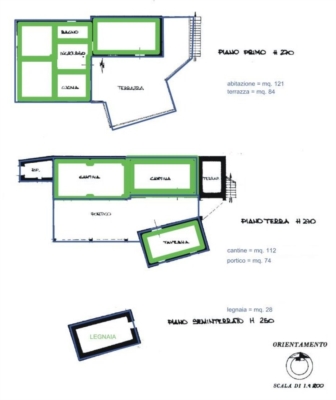
In zona dominante vicinissimo ai servizi, ampio podere di 4 ettari con casa indipendente in pietra in perfetto stato di conservazione. L'immobile si sviluppa su due livelli + legnaia nel seminterrato. Abitazione composta da splendida terrazza solarium di oltre 80 mq con accesso diretto all'abitazione. Ingresso, salone, cucina abitabile, due camere matrimoniali e bagno. Al piano terra cantine , taverna e portico chiuso , possibilità di realizzare secondo appartamento. Accesso diretto da strada privata. Tutto il terreno è coltivato e piantumato, principalmente vigneto e oliveto con dimostrata resa e qualità. Terreno vendibile anche frazionato.
CONTATTACI
Nome
Cognome
Email
Telefono
Messaggio
leggi normativa privacy
Acconsento al trattamento dei dati personali
Tipologia : Villa
Contratto : Vendita
Riferimento : I-510
Superficie : 265 Mq
Locali : 5
Bagni : 1
Camere : 2
Riscaldamento : Autonomo
Nota riscaldamento : termostufa
Cucina : abitabile
Soggiorno : sala
Ripostiglio :
Infissi interni : doppi vetri
Infissi esterni : persiane
Porta blindata Si
Cantina : si 84 Mq
Terrazzo : Si 84 Mq
Balcone :
Piano : Su più livelli
Ascensore :
Box : Si 74 Mq
Posto auto : coperto
Giardino : Si 40000 Mq
Stato : Buono
Arredamento : Non indicato
Spese condominiali : nessuna
Classe energetica : Classe energetica non indicata
Furia Immobiliare di Furia Elena via Pirandello 7, 54027 Pontremoli(MS) Tel.0187-830229 cell. 320 7019985 furiaimmobiliare@libero.it P.I.01161140452